リビングボイスTOP > (戸建(売買))地域から探す > 藤沢市 > 【仲介手数料0円】藤沢市善行1丁目 新築一戸建て 全4棟
【仲介手数料0円】☆大越小・善行中学区 ☆経済的な都市ガス設備 ☆江ノ島線「善行」駅徒歩6分の好立地 ☆近隣商業施設が充実していて住環境良好 ☆収納スペース豊富♪
【藤沢市の新築一戸建てのことならリビングボイスにお任せください!】
※写真や図と実際の現状とが異なる場合は現状を優先させていただきます。











(※元利均等方式 金利5.00%まで ※返済年数5~50年まで入力できます)
(※ボーナスは年2回で計算しています。1000万円まで入力できます)
(※物件購入時、その他諸費用が発生する場合がございます)
| 所在地 | 神奈川県藤沢市善行1丁目 | ||
|---|---|---|---|
| 交通 | |||
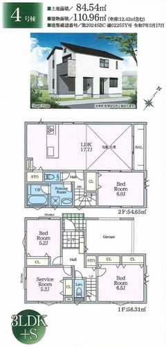
| 間取り/詳細 | 4LDK/ | 建物面積(坪数) | 108.36㎡(32.77坪) |
| 価格 | 4,480万円 | ||
| 駐車場/月額料金 | 有/0円 | ||
| 土地の敷金/保証金 | -/- | 借地料/借地期間 | -/- |
| 土地権利 | 所有権 | 土地面積(坪数) | 63.36㎡(19.16坪) |
| 傾斜地部分面積 | - | 路地状敷地 | - |
| 私道負担面積/セットバック | -/無 | 高圧線下面積 | - |
| 地目/地勢 | 宅地/- | 接道状況 | -(北東 公道 6.0m) |
| 建ぺい率/容積率 | -/- | 用途地域 | 第二種中高層住居専用 |
| 都市計画 | 市街化区域 | 種別/構造 | 新築一戸建/木造 |
| 階建 | 3階建 | 築年月(築年数) | 2025年 12月 (新築) |
| 総区画数/販売区画数 | 4区画/4区画 | 向き | - |
| 現況 | 完成済み | その他の法令上の制限 | - |
| 取引態様/引渡時期 | 仲介/即時 | 建築確認番号 | 第1号 |
| 物件番号 | 96388040 | 取引条件の有効期限 | 2026年03月26日 |
| 設備条件 |
|
||
| 備考 |
☆☆新築一戸建てが仲介手数料0円☆☆ ■神奈川県内の新築一戸建て=仲介手数料0円! ■不動産売却もお任せ!=もちろん秘密厳守。ご相談、査定は無料です。 住宅ローンのご相談も住宅ローンアドバイザーが無料でアドバイスさせていただきますのでご安心下さい。 【株式会社リビングボイス】 フリーダイヤル:0120-028-551 「リビングボイス」で検索! |
||
| 取扱会社 |
|
||
| QRコード |
このQRコードを読み取ることで、スマホでも物件情報を確認できます。 |
||
※地図上に表示される物件の位置は付近住所に所在することを表すものであり、実際の物件所在地とは異なる場合がございます。
【仲介手数料0円】藤沢市善行1丁目 新築一戸建て 全4棟に関するこだわり条件から探す
藤沢市以外の市区町村から探す
藤沢市の町名から探す